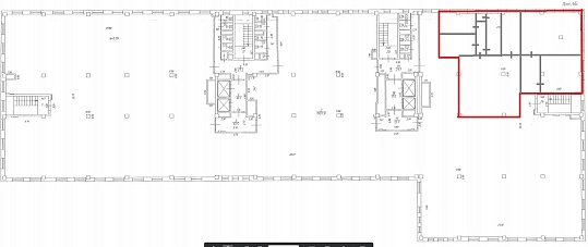
Помещение 100,1 м2

офис
Помещение 100,1 м2
Тип помещения офис
Строение Корпус 17
Этаж 5
Ремонт Да
Витринные окна Нет
Отдельный вход Да
Высота потолков 2,7м
Стоимость: по договоренности
Площадь: 100,1 м2
Адрес нахождения: Московская область, Красногорск городской округ, пгт. Путилково, Гринвуд тер., с 17
Оставить заявку
по рабочим дням, с 9.00 до 18.00

Описание помещения

Предлагаем в аренду **компактный офис площадью 100,1 м²**, расположенный на 5-м этаже в **Строении 17** современного Бизнес-парка «Гринвуд». Это идеальное решение для небольшой компании или стартапа, ищущего полностью готовое к въезду помещение в развитом деловом кластере Москвы и Красногорска.

Помещение имеет современную отделку, что позволяет новым арендаторам избежать затрат на ремонт — въезд возможен сразу после подписания договора. Комфорт обеспечивают надежные лифты OTIS и современная техническая оснащенность здания: центральное кондиционирование, приточно-вытяжная вентиляция и электрическая мощность 60-80 Вт/м².

«Гринвуд» расположен в удобной транспортной доступности от МКАД и Ленинградского шоссе. Важным преимуществом для сотрудников является бесплатный корпоративный автобус, регулярно курсирующий до станции метро Сходненская. Для автовладельцев предусмотрен обширный паркинг на 2300 мест.

Для вашего бизнеса предоставляется юридический адрес, а безопасность обеспечивается круглосуточной охраной и видеонаблюдением.

Условия аренды

  • В арендную ставку включены: НДС, эксплуатационные расходы и коммунальные платежи (кроме электричества).
  • Система налогообложения: НДС.
  • Договор аренды минимум на 11 месяцев.
  • Предоставляется юридический адрес.

Контакты отдела аренды

Главный телефон: +7 (495) 788-88-75 (по рабочим дням, с 9.00 до 18.00)

Дополнительные номера: +7 (916) 799-95-35, +7 (916) 799-95-05

Заинтересованы? Свяжитесь с нами, чтобы уточнить стоимость и организовать просмотр помещения уже сегодня!

Преимущества аренды в бизнес-центре Greenwood

Система центрального кондиционирования
Спринклерная система пожаротушения
Система видеонаблюдения
Круглосуточная охрана
Лифты OTIS
Электрическая мощность 60-80ВТ/м
2300 парковочных мест
Бесплатный автобус от метро
Коммунальные платежи включены
Выполнена современная отделка
Бизнес-парк Greenwood - новый уровень для вашей компании

Оставьте заявку и мы свяжемся с вами уже сегодня

Похожие помещения

Все офисы
Помещение 243,7 м2
Помещение 243,7 м2
Помещение 243,7 м2
Помещение 243,7 м2
Помещение 243,7 м2
Помещение 243,7 м2
Помещение 243,7 м2
Помещение 243,7 м2
Помещение 243,7 м2
Помещение 243,7 м2
Помещение 243,7 м2

Помещение 243,7 м2

по договоренности

Расположение

Московская область, Красногорск городской округ, пгт. Путилково, Гринвуд тер., с 33

Этаж: 3
Помещение 254,1 м2
Помещение 254,1 м2
Помещение 254,1 м2
Помещение 254,1 м2
Помещение 254,1 м2
Помещение 254,1 м2
Помещение 254,1 м2
Помещение 254,1 м2
Помещение 254,1 м2
Помещение 254,1 м2

Помещение 254,1 м2

по договоренности

Расположение

Московская область, Красногорск городской округ, пгт. Путилково, Гринвуд тер., с 1

Этаж: 3
Помещение 177,3 м2
Помещение 177,3 м2
Помещение 177,3 м2

Помещение 177,3 м2

по договоренности

Расположение

Московская область, Красногорск городской округ, пгт. Путилково, Гринвуд тер., с 1

Этаж: 1
Помещение 1025,9 м2
Помещение 1025,9 м2
Помещение 1025,9 м2
Помещение 1025,9 м2
Помещение 1025,9 м2
Помещение 1025,9 м2
Помещение 1025,9 м2
Помещение 1025,9 м2
Помещение 1025,9 м2
Помещение 1025,9 м2
Помещение 1025,9 м2
Помещение 1025,9 м2
Помещение 1025,9 м2
Помещение 1025,9 м2
Помещение 1025,9 м2
Помещение 1025,9 м2
Помещение 1025,9 м2

Помещение 1025,9 м2

по договоренности

Расположение

Московская область, Красногорск городской округ, пгт. Путилково, Гринвуд тер., с1

Этаж: 5

НАШИ ПАРТНЕРЫ

Ждём вас в БИЗНЕС-ПАРКЕ GreenWood

143441 Московская область,
Красногорский район, п/о Путилково, 72 км МКАД

Написать нам