Аренда офиса 243,7 м² с отделкой в БП Гринвуд (Строение 33) — 3 этаж

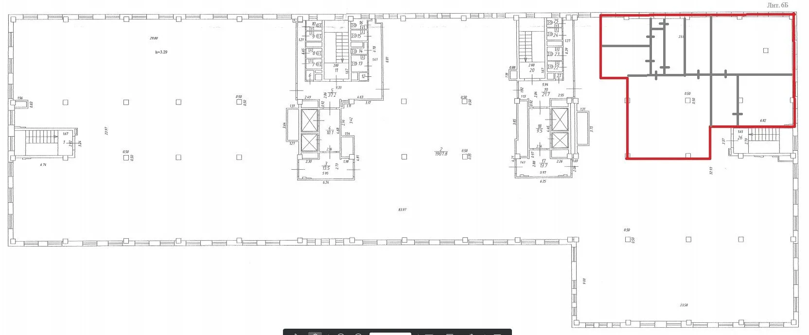
Помещение 243,7 м2

офис
Помещение 243,7 м2
Тип помещения офис
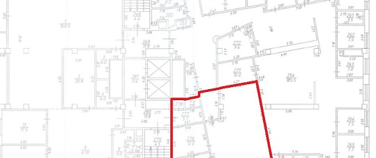
Строение Корпус 33
Этаж 3
Ремонт Да
Витринные окна Нет
Отдельный вход Да
Высота потолков 2,7м
Стоимость: по договоренности
Площадь: 243,7 м2
Адрес нахождения: Московская область, Красногорск городской округ, пгт. Путилково, Гринвуд тер., с 33
Оставить заявку
по рабочим дням, с 9.00 до 18.00

Описание помещения

Предлагаем в аренду просторное офисное помещение площадью 243,7 м², расположенное на 3-м этаже в современном Корпусе 33 Бизнес-парка «Гринвуд». Это идеальное решение для компаний, которым требуется готовый к работе офис в развитом деловом кластере между Москвой и Красногорском.

Помещение имеет современную отделку, что позволяет новым арендаторам не тратить время и средства на ремонт — въезд возможен сразу после подписания договора. Комфорт обеспечивают надежные лифты OTIS и современная техническая оснащенность здания: центральное кондиционирование, приточно-вытяжная вентиляция и электрическая мощность 60-80 Вт/м².

«Гринвуд» расположен в удобной транспортной доступности от МКАД и Ленинградского шоссе. Важным преимуществом для сотрудников является бесплатный корпоративный автобус, регулярно курсирующий до станции метро Сходненская. Для автовладельцев предусмотрен обширный паркинг на 2300 мест.

Для вашего бизнеса предоставляется юридический адрес, а безопасность обеспечивается круглосуточной охраной и видеонаблюдением.

Условия аренды

  • В арендную ставку включены: НДС, эксплуатационные расходы и коммунальные платежи (кроме электричества).
  • Система налогообложения: НДС.
  • Договор аренды минимум на 11 месяцев.
  • Предоставляется юридический адрес.

Контакты отдела аренды

Главный телефон: +7 (495) 788-88-75 (по рабочим дням, с 9.00 до 18.00)

Дополнительные номера: +7 (916) 799-95-35, +7 (916) 799-95-05

Заинтересованы? Свяжитесь с нами, чтобы уточнить стоимость и организовать просмотр помещения уже сегодня!

Преимущества аренды в бизнес-центре Greenwood

Аренда залов для семинаров и конференций Система центрального кондиционирования
Аренда залов для семинаров и конференций Спринклерная система пожаротушения
Аренда залов для семинаров и конференций Система видеонаблюдения
Аренда залов для семинаров и конференций Круглосуточная охрана
Аренда залов для семинаров и конференций Лифты OTIS
Аренда залов для семинаров и конференций Электрическая мощность 60-80ВТ/м
Аренда залов для семинаров и конференций 2300 парковочных мест
Аренда залов для семинаров и конференций Бесплатный автобус от метро
Аренда залов для семинаров и конференций Коммунальные платежи включены
Аренда залов для семинаров и конференций Выполнена современная отделка
Бизнес-парк Greenwood - новый уровень для вашей компании

Оставьте заявку и мы свяжемся с вами уже сегодня

Похожие помещения

Все офисы
Помещение 254,1 м2
Помещение 254,1 м2
Помещение 254,1 м2
Помещение 254,1 м2
Помещение 254,1 м2
Помещение 254,1 м2
Помещение 254,1 м2
Помещение 254,1 м2
Помещение 254,1 м2
Помещение 254,1 м2

Помещение 254,1 м2

по договоренности

Расположение

Московская область, Красногорск городской округ, пгт. Путилково, Гринвуд тер., с 1

Этаж: 3
Помещение 100,1 м2
Помещение 100,1 м2
Помещение 100,1 м2
Помещение 100,1 м2
Помещение 100,1 м2
Помещение 100,1 м2
Помещение 100,1 м2
Помещение 100,1 м2
Помещение 100,1 м2
Помещение 100,1 м2

Помещение 100,1 м2

по договоренности

Расположение

Московская область, Красногорск городской округ, пгт. Путилково, Гринвуд тер., с 17

Этаж: 5
Помещение 657,4 м2
Помещение 657,4 м2
Помещение 657,4 м2
Помещение 657,4 м2
Помещение 657,4 м2
Помещение 657,4 м2
Помещение 657,4 м2
Помещение 657,4 м2
Помещение 657,4 м2
Помещение 657,4 м2
Помещение 657,4 м2
Помещение 657,4 м2
Помещение 657,4 м2
Помещение 657,4 м2
Помещение 657,4 м2
Помещение 657,4 м2
Помещение 657,4 м2

Помещение 657,4 м2

по договоренности

Расположение

Московская область, Красногорск городской округ, пгт. Путилково, Гринвуд тер., с 23

Этаж: 4
Помещение 1025,9 м2
Помещение 1025,9 м2
Помещение 1025,9 м2
Помещение 1025,9 м2
Помещение 1025,9 м2
Помещение 1025,9 м2
Помещение 1025,9 м2
Помещение 1025,9 м2
Помещение 1025,9 м2
Помещение 1025,9 м2
Помещение 1025,9 м2
Помещение 1025,9 м2
Помещение 1025,9 м2
Помещение 1025,9 м2
Помещение 1025,9 м2
Помещение 1025,9 м2
Помещение 1025,9 м2

Помещение 1025,9 м2

по договоренности

Расположение

Московская область, Красногорск городской округ, пгт. Путилково, Гринвуд тер., с1

Этаж: 5

НАШИ ПАРТНЕРЫ

Аренда залов для семинаров и конференций
Аренда залов для семинаров и конференций
Аренда залов для семинаров и конференций
Аренда залов для семинаров и конференций
Аренда залов для семинаров и конференций
Аренда залов для семинаров и конференций
Аренда залов для семинаров и конференций
Аренда залов для семинаров и конференций
Аренда залов для семинаров и конференций
Аренда залов для семинаров и конференций
Аренда залов для семинаров и конференций
Аренда залов для семинаров и конференций
Аренда залов для семинаров и конференций
Аренда залов для семинаров и конференций
Аренда залов для семинаров и конференций
Аренда залов для семинаров и конференций
Аренда залов для семинаров и конференций
Аренда залов для семинаров и конференций
Аренда залов для семинаров и конференций
Аренда залов для семинаров и конференций
Ждём вас в БИЗНЕС-ПАРКЕ GreenWood

143441 Московская область,
Красногорский район, п/о Путилково, 72 км МКАД

Написать нам